-
-
-
Tổng tiền thanh toán:
-
Thùng lọc mùi bằng than hoạt tính Active Carbon Tower
23/01/2024
Mùi, khí thải được phát sinh ra trong nhà máy, KCN thường có mùi khó chịu và độc hại. Việc lọc mùi được chú trọng, các doanh nghiệp tìm kiếm các phương pháp xử lý mùi sao cho hiệu quả.
Một trong những giải pháp được ưu tiên sử dụng đó chính là thùng lọc mùi bằng than hoạt tính Active Carbon Tower. Cùng System Fan tìm hiểu về cơ chế hoạt động của thùng lọc mùi than hoạt tính dưới đây!
Mùi hôi xuất hiện trong các môi trường làm việc của khu công nghiệp, khu chế biến khu chế xuất, chế biến, hoặc các nhà máy lớn,... là nguyên nhân trực tiếp gây nên tình trạng ô nhiễm môi trường, ảnh hưởng đến sức khỏe và năng suất làm việc. Chính vì thế để đảm bảo an toàn lao động, vô không khí trong lành trong quá trình làm việc và sản xuất, đòi hỏi phải có phương án xử lý mùi hiệu quả. Cùng System Fan Việt Nam tìm hiểu về giải pháp xử lý mùi bằng thùng lọc mùi bằng than hoạt tính Active Carbon Tower được các đơn vị lựa chọn nhiều nhất hiện nay nhé.
Ngoài việc xử lý mùi, than hoạt tính còn được ứng dụng trong các hệ thống xử lý khí thải bằng than hoạt tính. Hệ thống đem lại hiệu quả cao cho doanh nghiệp sử dụng.
01| Vật liệu lọc
Trong quá trình sản xuất công nghiệp hiện nay, việc khí thải sinh ra có chứa các mùi độc hại là việc không thể tránh khỏi. Để đảm bảo môi trường an toàn cho người lao động và bảo vệ môi trường, các nhà máy cần trang bị các thiết bị hút lọc, xử lý khí thải trước khi đưa ra ngoài môi trường.
Vật liệu dùng để khử mùi, lọc khí phổ biến hiện nay là than hoạt tính. Than hoạt tính là vật liệu mang lại hiệu quả cao trong việc lọc, khử xử lý mùi. Nhờ vào cấu tạo xốp, có nhiều lỗ hổng không đồng đều, gia tăng diện tích tiếp xúc với dòng khí thải. Chúng có khả năng hấp thụ cực tốt các chất không phân cực ở dạng khí, lỏng. Ngoài ra chúng còn có những ưu điểm như:
- Có thể sử dụng than hoạt tính dạng tấm hoặc dạng viên.
- Than hoạt tính dạng tấm giúp dễ dàng thay thế nhưng giá thành cao.
- Than dạng viên thường có giá thành thấp nhưng quá trình thay thế khó khăn hơn dạng tấm.
02| Cấu tạo buồng lọc
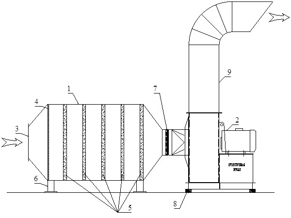
Thùng lọc mùi than hoạt tính có cấu tạo khá đơn giản, được thể hiện bằng hình vẽ dưới đây:

Hình ảnh cấu tạo bộ lọc khí
️🎯 Ghi chú:
- Vỏ buồng lọc khí.
- Quạt ly tâm hút khí.
- Miệng kết nối với đường ống thu khí.
- Tấm lọc thô lọc bụi.
- Tấm lọc Carbon.
- Chân đỡ buồng lọc.
- Khớp nối mềm.
- Giảm chấn.
- Ống thoát khí.
️🎯 Nguyên lý hoạt động:
- Đường ống thu khí được bố trí tới tận các vị trí máy phát sinh khí thải. Ống chính kết nối vào miệng hút của buồng lọc.
- Quạt hút tạo lưu lượng áp suất để thu khí thải về buồng lọc thông qua hệ thống đường ống. Khí thải lần lượt đi qua lớp lọc thô để lọc bụi bẩn, sau đó đi qua các lớp lọc Carbon để khử mùi.
- Quạt hút và tiết diện lọc được đội ngũ thiết kế của System Fan tính toán lựa chọn hợp lý giúp đạt được hiệu suất cao nhất và chi phí đầu tư cũng như chi phí vận hành tiết kiệm nhất.
️🎯 Ứng dụng:
Thùng lọc mùi than hoạt tính AC (Active Carbon Tower) hiện được sử dụng rộng rãi cho nhiều ngành công nghiệp khác nhau, điển hình trong các nhà máy sản xuất linh điện tử, các phòng in, nhà máy sản xuất sơn, phòng hàn, sơn sản phẩm...
Nhờ việc sử dụng thùng lọc mùi than hoạt tính, giúp đảm bảo môi trường nhà máy hạn chế mùi, an toàn cho sức khoẻ người lao động, đảm bảo môi trường làm việc giúp gia tăng hiệu suất lao động.
Việc xử lý khí thải luôn được đặt lên hàng đầu trong các nhà máy công nghiệp. Do vậy, việc trang bị một hệ thống xử lý mùi hiệu quả giúp xử lý mùi, xử lý khí thải là điều vô cùng cần thiết đang được nhiều doanh nghiệp quan tâm.
Nếu bạn đang có nhu cầu thiết kế hệ thống xử lý mùi, xử lý khí thải, hãy liên hệ ngay với System Fan Việt Nam – đơn vị hàng đầu trong lĩnh vực sản xuất và cung cấp các dòng quạt công nghiệp, hệ thống xử lý khói bụi uy tín, chất lượng. Tại đây, khách hàng sẽ được nhân viên tư vấn tận tình đúng cách cùng chế độ bảo hành tối ưu giúp công việc của bạn trở nên dễ dàng và hiệu quả hơn.
Mọi thông tin chi tiết xin vui lòng liên hệ
CÔNG TY CỔ PHẦN TẬP ĐOÀN SYSTEM FAN GLOBAL
- VPGD: Biệt thự NV11, KĐT Mễ Trì Hạ, Phường Mễ Trì, quận Nam Từ Liêm, Hà Nội.
- Nhà máy sản xuất: Cụm công nghiệp Long Xuyên – Kinh Môn – Hải Dương
- Hotline: 0888.318.886 - 098.151.2866
- Email: systemfan.vn@gmail.com
- Website: systemfan.vn
Bình luận
Nội dung này chưa có bình luận, hãy gửi cho chúng tôi bình luận đầu tiên của bạn.